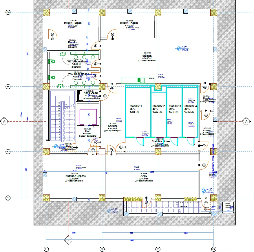
Binanın bodrum katı teknik servis/ikmal alanı olarak planlanmıştır. Bodrum katında 25°C/%60RH, 30°C/%65RH, 30°C/%75RH, 40°C/%75RH değerlerine sahip 4 tip stabilite odası bulunmaktadır. Bodrum katında 15-25°C/Max60%RH değerlerine sahip numune muhafaza odası, Arşiv Odası, Barınak bulunmaktadır.
Zemin katta Malzeme Kabul ve Sevkiyat alanları, Depo, Katı, Sıvı, Steril Sıvı, Yarı Katı Üretim alanları, Birincil ve İkincil Paketleme alanları ve Personel soyunma odaları bulunmaktadır. Üretim alanları hazırlık aşamasından ürün kapatılmasına kadar tüm proses aşamaları dahil 2550 m²'dir. Üretim odaları oda içindeki ekipman yüksekliklerine göre 3m ve 4,5m yüksekliktedir. Depo alanı 930 m², 13 m yüksekliğinde olup 1100 euro palet kapasitesine sahiptir. Su sistemleri alanında; Remoin jeneratörleri ve Neumo dağıtım sistemleri kullanılıyor; Üretim için arıtılmış su (5000 lt/h), Enjeksiyonluk Su (3000 lt/h), Saf Buhar (500 kg/h) ve PW (6 ton), WFI (3 ton) için dağıtım sistemi tankı monte edilmiştir.
Esir Mühendislik çözüm hazırlama sistemleri:
Steril Üretimin 2023 yılı 4.çeyreğinde bu ekipmanlarla devreye alınması planlanmaktadır;Esir Mühendislik - 250 lt ve 2000 lt SVP TanklarıEsir Mühendislik - 250 lt ve 2000 lt Filtrasyon TanklarıSyntegon - Flakon Yıkama Makinesi ve Sterilizasyon TüneliSyntegon - Flakon Dolum ve Kapama Makinesi (12000) 2ml ürünler için adet/saat)Fedegari - FOF3/9 Sterilizasyon Otoklavı (800 lt kapasiteli)AGE - Etiketleme ve Serileştirme, Ağırlık Kontrol MakinalarıRomaco - Kartonlama Makinası
Ar-Ge Laboratuvarı düzeni
Birinci katta Restoran, Dinlenme Alanı, Eğitim Odası ve Toplantı Odaları bulunmaktadır. Aynı katta; Ayrıca Sıvı Üretim alanlarına giriş için Kalite Güvence ve Üretim Ofisleri ve Soyunma Odaları bulunmaktadır. Bu katta ayrıca 130 m² Ar-Ge alanı bulunmaktadır.
Kalite Kontrol Laboratuvarı düzeni
Enerji Binası adı verilen 400 m² alana sahip 4 katlı, kamu hizmetleri için ayrı bir bina. Bodrum Katta genel kullanıma yönelik beton su depoları ve yangından korunma sistemleri bulunmaktadır. Bu beton tanklar toplam 550 ton su içeren ortak tanklardır. Yine bu katta bulunan ilaç su sistemlerinin ön arıtması kum filtresi, aktif karbon filtresi ve yumuşatıcı ile 50 tonluk modüler tank ile yapılmaktadır. Zemin katta buhar kazanı ve ısı dağıtım sistemleri bulunmaktadır. -40°C çiğlenme noktasına sahip silikajel kurutuculu, yağsız bir kompresör. 1000 kVA kapasiteli elektrik jeneratörü. Ve 1600 kVA kapasiteli elektrik transformatörleri. Birinci katta elektrik dağıtım sistemleri odası, teknisyenler için soyunma odası, atölye ve yedek parça deposu bulunmaktadır. İkinci katta soğutma üniteleri ve soğutma hatları, teknik ofisler bulunmaktadır. Üçüncü kat, Enerji binası ile Üretim binası arasındaki bağlantı borusunun bulunduğu çatı katıdır.
Kalite kontrol laboratuvarı
Kalite Kontrol Laboratuvarı, Enstrümantal Analiz Laboratuvarı, Islak Kimya Laboratuvarı Su Analiz Laboratuvarı Tartım Odası Reaktif Odası Numune Kabul Odası Yıkama Odası Temizlik Odası ofisleri olarak tasarlanmıştır.
Laboratuvarımızda kullanılacak cihazlar ileri teknolojiye sahiptir. Kromatografi, spektroskopi ve analitik cihazlarımız 21 CFR part 11 uyumlu olup uluslararası markalardan seçilmiştir. Bünyemizde bulunması planlanan cihazlar aşağıdaki gibidir:
* HPLC ( UV, PDA, RID, ECD)
*GC ( FID, TCD, Headspace)
*UV
*AAS
*FT-IR
*TOC
*Karl Fischer Device
*Potentiometric Titrator
*Ultra Micro Balance
*Precision Balance
*pH Meter
*Photometer
*Ultra Purified Water Device
*Osmometer
*Moisture Analyzer
*Liquid Particle Counter
*Polarimeter
*Densimeter
*Melting Point Device
*Viscositymeter
Kalite Kontrol Laboratuvarımız, hammadde, yardımcı madde, yarı ürün, bitmiş ürün, stabilite ve ambalaj malzemelerini EP, USP, cGMP ve diğer yönergelere uygun olarak analiz edebilecek kapasitede planlanmıştır.
Laboratuvarımızda yapılabilen analizler şunlardır:
*Görünüm, renk, koku ve tanıma analizleri
*Tahlil analizi
*pH ölçümü, su miktarı
*Partikül madde
*Artık solvent analizi
*Safsızlık analizi
*Su analizi
*Çözünme analizleri
*Diğer niteliksel ve niceliksel analizler
MİKROBİYOLOJİ laboratuvarı
Mikrobiyal Limit Testleri (Biyoyük) - Patojen Analizi - Bakteriyel Endotoksin Testleri - Tüm Hammaddelerin, Ambalaj Malzemelerinin, Yardımcı Maddelerin ve Bitmiş Ürünlerin Sterilite Testlerinin GMP gereklilikleri, Avrupa Farmakopesi ve diğer güncel kılavuzlara uygun olarak yapılması planlanmaktadır.
DEPO
Tesiste kullanılacak kimyasal hammadde ve yardımcı malzemelerin depolama ve üretim süreçleri Malzeme Güvenlik Bilgi Formlarında (MSDS) tanımlanan şartlara uygun olarak gerçekleştirilecektir. Ürünler sıcaklık ve nem kontrollü yüksek depo alanında depolanacaktır. İlk etap depo yatırımında 1100 paletlik kapasite sağlandı. İkinci etapla birlikte 6000 palet kapasitesine ulaşacak.
ALTYAPI SİSTEMLERİ
Erensan Buhar Tankı 4 ton/saat Daikin Su Soğutma Sistemleri Atlas Copco Basınçlı Hava Sistemleri Daikin Hijyenik Klima Santralleri Remoin İlaç Su Hazırlama Sistemleri (PW, WFI, PS) Neumo İlaç Su Depolama ve Dağıtım Sistemleri Aksa Elektrik Jeneratör
